Images are for illustrative purposes only and may differ from the actual product.
Images are for illustrative purposes only and may differ from the actual product.
Images are for illustrative purposes only and may differ from the actual product.
Images are for illustrative purposes only and may differ from the actual product.
Images are for illustrative purposes only and may differ from the actual product.
Images are for illustrative purposes only and may differ from the actual product.
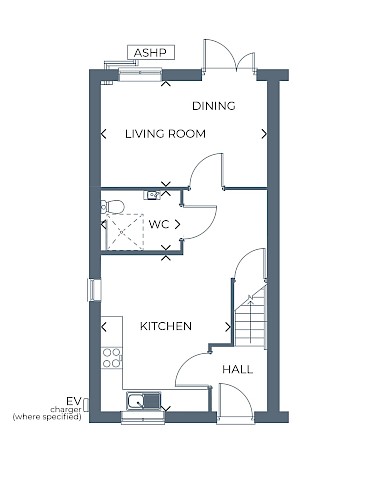
The Fern is a thoughtfully designed two-bedroom semi-detached home that blends comfort, practicality, and contemporary style. The ground floor features a spacious kitchen/dining area, a WC, and a bright living area with French doors to the rear garden. Upstairs, two well-proportioned bedrooms sit alongside a modern family bathroom. With a front and rear garden, parking, and energy-efficient features included, The Fern is ideal for modern living.
Images, dimensions, and layouts are indicative only and may include optional upgrades, subject to availability and at additional cost. Please check with our sales team for more information.
Key features
- Semi-detached
- Front and rear gardens
- High-quality specifications included as standard from well-known brands
- Personalise your home with our optional extras (subject to build stage)
- 10-Year Warranty (first 2 years with Gleeson and a further 8 years with NHBC)
Floor Plans

Ground Floor
| Room | Metres | Feet & Inches |
|---|---|---|
| Kitchen / Dining | 4.31 x 3.59 | 14'2" x 11'9" |
| Living Room | 2.92 x 4.59 | 9'7" x 15'1" |
| WC | 1.65 x 2.19 | 5'5" x 7'2" |

First Floor
| Room | Metres | Feet & Inches |
|---|---|---|
| Bedroom 1 | 3.90 x 4.59 | 12'10" x 15'1" |
| Bedroom 2 | 2.39 x 3.44 | 7'10" x 11'4" |
| Bathroom | 2.56 x 2.17 | 8'5" x 7'2" |
Total liveable area: 84.04m² / 904ft²
How much could you spend on a new home?
Please select a Development to find out how much you could spend on a new home with our clever mortgage calculator.
Let us know what you are interested in so that we can keep in touch.
Please be as specific as possible to ensure your enquiry can be answered accurately.
* Fields are mandatory
Enquire Now