shared ownership
Plot 87, Neale
at Saddler Fields
- 3 bedroom semi-detached home
- Single Integral Garage
- 2 Bathrooms
- 3 Bedrooms
- Leasehold
Available for £126,498
Show home to view at our Tulip Fields development
Our sales centre and show homes are open 10am until 5pm Thursday to Monday - No appointment necessary!
Contact sales team
01775 557 869- Please note, this development will be closed from Tuesday 23 December 2025 - Thursday 1 January 2026. Normal operating hours will resume from Friday 2 January 2026. Merry Christmas and a Happy New Year!
- Council Tax Band TBC
- EPC Rating TBC
Price shown based on a 50% share of £252,995 (full purchase price). T&Cs apply. Eligibility Criteria applies, speak to our Sales Executive for more information.
Plot 87, The Neale is a stunning semi-detached home, featuring a spacious living room leading to a contemporary kitchen-diner. Upstairs brings a touch of luxury to this home with a spacious main bedroom and private en-suite, plus two further bedrooms and a family bathroom. A convenient integral garage and private driveway complete this home.
Images, dimensions, and layouts are indicative only and may include optional upgrades, subject to availability and at additional cost. Please check with our sales team for more information.
Key features
- Shared ownership*
- Turf to front and rear gardens, an outside tap, 1.8m rear fencing, an electric vehicle charger and an Air Source Heat Pump included as standard
- Semi-detatched
- En-suite to master bedroom
- Integral garage
- High-quality specifications included as standard from well-known brands
- Personalise your home with our optional extras (subject to build stage)
- 10-Year Warranty (first 2 years with Gleeson and a further 8 years with NHBC)
Take a look around!
Matterport room dimensions are provided as approximate measurements, accurate to ±50mm, and may include fitted wardrobes or similar features. Please refer to the dimensions specified alongside the floor plans below.
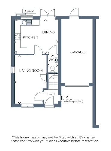
Floor Plans

Ground Floor
| Room | Metres | Feet & Inches |
|---|---|---|
| Kitchen / Dining | 4.14 x 3.29 | 13'7" x 10'10" |
| Living Room | 4.65 x 3.06 | 15'3" x 10'1" |
| WC | 1.69 x 0.98 | 5'7" x 3'3" |

First Floor
| Room | Metres | Feet & Inches |
|---|---|---|
| Bedroom 1 | 4.14 x 4.16 | 13'7" x 13'8" |
| En-suite | 2.15 x 1.20 | 7'0" x 3'11" |
| Bedroom 2 | 3.44 x 3.19 | 11'3" x 10'6" |
| Bedroom 3 | 3.14 x 2.51 | 10'4" x 8'3" |
| Bathroom | 2.84 x 2.37 | 9'4" x 7'9" |
Total liveable area: 84.00m² / 904ft²
Standard specification
Kitchens
With 100’s of Symphony kitchen combinations to choose from you can create a space completely tailored to you. Your kitchen will include a stainless steel single oven and sink, with drainer board and a mixer tap. There will be space provided for a standard size washing machine with cold feed plumbing and a single power point.
Bathrooms
Your bathroom will come complete with a white Ideal Standard bathroom suite, with pillar taps to the bath and washbasin. Choose between a range of Porcelanosa tiles to finish your bathroom perfectly.
Fixtures & fittings
Your home will come finished with a consumer unit, sockets and switches all included and fit to NHBC standards. Energy saving lightbulbs will be provided where required.
Heating
Subject to plot and development, your home will come complete with either a brand new, high efficiency combination boiler and central heating system, or air source heat pump technology installed. Please speak to your Sales Executive for more information.
Exterior
All homes at Saddler Fields feature a turfed front and rear garden, an outside tap, 1.8m rear fencing, an electric vehicle charger and an Air Source Heat Pump included as standard. Speak to your Sales Executive for more information.
Community
Transport
Saddler Fields is ideally positioned between the popular Lincolnshire towns of Boston, Spalding, and Holbeach, with convenient transport links via the A16 and A17, just minutes away. Spalding railway station is a 17-minute drive from Saddler Fields, offers additional connections to Lincoln and Peterborough. A nearby bus stop provides regular services to Boston and Spalding town centres, making travel easy and accessible.
Schools
For families, the area is well-equipped with quality schools. Gosberton House Academy, catering to children aged 2–11, is located just a short walk from the development. Quadring Cowley & Brown’s Primary School and Surfleet Primary School are also within a short drive. Older children can attend Cowley Academy or Thomas Middlecott Academy, both easily accessible from Saddler Fields.
Amenities
The village of Gosberton offers a variety of amenities within walking distance of the development, including a Co-op Food Store, family butchers, and a greengrocer. The village also features two medical centres, a post office, and local tea rooms and pubs, providing convenience and community charm.
Leisure
For family fun, the nearby Springfields Outlet in Spalding offers a memorable day out. Highlights include the UK’s largest JCB Young Drivers Zone, complete with interactive play equipment, a miniature train, paddle boats, rope bridges, mini golf, a splash park, and a climbing wall. After an active day, visitors can enjoy a meal at the centre’s authentic American diner.
How much could you spend on a new home?
Let us know what you are interested in so that we can keep in touch.
Please be as specific as possible to ensure your enquiry can be answered accurately.
* Fields are mandatory
Enquire Now
We look forward to meeting you!
Enter your information below to request an appointment for plot 87 at Saddler Fields and we will get back to you as soon as possible to confirm.
* Fields are mandatory
Request an Appointment
Plot 87 at Saddler Fields


